Горизонтальный циклон-искрогаситель используется как мера по защите рукавов рукавных фильтров от прожигания искрами, которые могут лететь в потоке очищаемого газа. Также циклоны применяются в качестве первой ступени очистки от крупной пыли и снижают пылевую нагрузку на рукавный фильтр.

Горизонтальный циклон не требует отдельного места, так как монтируется на газоходе перед рукавным фильтром. Его горизонтальное расположение позволяет подсоединить к нему бункер-пылесборник вертикально внизу.
Принцип работы горизонтального циклона таков: запылённый газ поступает во внутреннюю часть устройства, где, благодаря воздействию радиальных и осевых завихрителей, вызываемых рассекателем и решеткой закручивания потока, закручивается и освобождается от искр и крупных частей, Последние попадают в бункер для дальнейшей выгрузки через пылевыгружные устройства - «двойную» мигалку или шлюзовой питатель.
Технические характеристики:
|
Типоразмер/ Параметры |
Производительность, м3/час |
Масса, кг |
Длинна, мм |
Размер входного фланца, мм |
Размер выходного фланца, мм |
|
ЦГ-5 |
5000 |
165 |
1 800 |
442 |
550 |
|
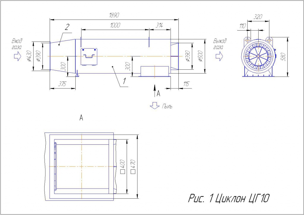
ЦГ-10 |
10 000 |
163 |
1 890 |
390 |
390 |
|
ЦГ-15 |
15 000 |
265 |
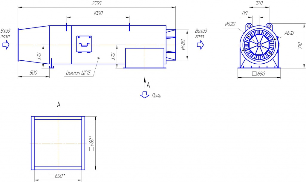
2 550 |
520 |
480 |
|
ЦГ-20 |
20 000 |
611 |
2 983 |
615 |
|
|
ЦГ-35 |
35 000 |
782 |
3 500 |
775 |
725 |
|
ЦГ-40 |
40 000 |
955 |
4 000 |
770 |
770 |
|
ЦГ-45 |
45 000 |
1 770 |
4 356 |
900 |
900 |
|
ЦГ-50 |
50 000 |
1 742 |
4 350 |
954 |
896 |
|
ЦГ-60 |
60 000 |
1 750 |
4 350 |
954 |
896 |
|
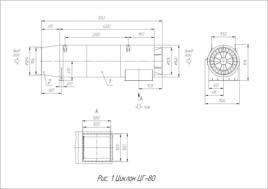
ЦГ-80 |
80 000 |
2 600 |
5 363 |
1 184 |
1 214 |
|
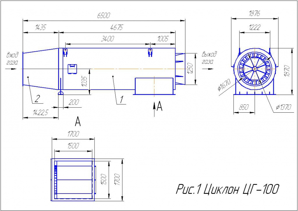
ЦГ-100 |
100 000 |
4 108 |
6 500 |
1 370 |
1 250 |
|
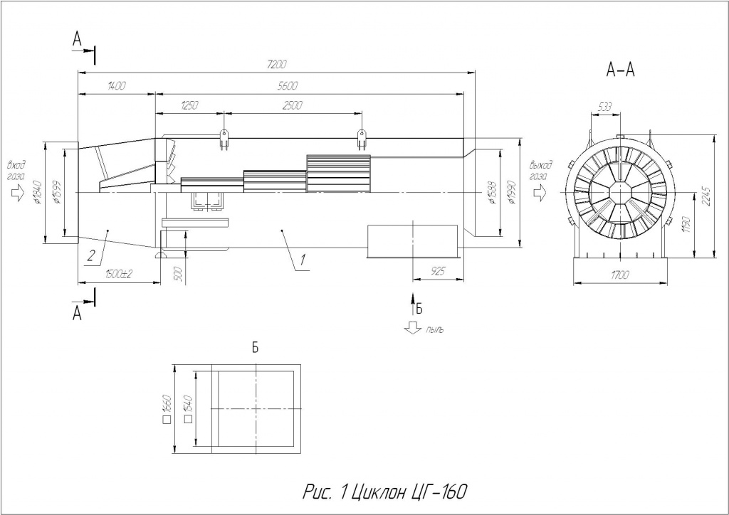
ЦГ-160 |
160 000 |
6 229 |
7 700 |
1 599 |
1 588 |
|
ЦГ-450 |
450 000 |
17 925 |
11 000 |
2 630 |
2 600 |
|
ЦГ-550 |
550 000 |
19 373 |
12 000 |
3 000 |
3 150 |
Пример условного обозначения
ЦГ-5
ЦГ – циклон-горизонтальный;
5 – производительность в тысячах кубических метров;
ЦГ5 (Габаритка)
ЦГ10 (Габаритка)
ЦГ15 (Габаритныи чертеж)
ЦГ25_без бункера (габартка)
ЦГ25_с бункером (габаритка)
ЦГ-35 (Габаритка)
ЦГ-40 (Габаритка)
ЦГ-45 (Габаритка)
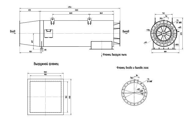
ЦГ50 (Габаритка)
ЦГ-60 (Габаритка)
ЦГ-80 (Габаритка)
ЦГ-100 (Габаритка)
ЦГ-160 (Габаритка)