197229, г. Санкт-Петербург, 1-я Конная Лахта дом 9
Меню

Рукавный фильтр КФЕ48А

Заказать

Технические характеристики

Гидравлическое сопротивление фильтра2500Па
Площадь фильтрации, не менее60м2
Максимальный расход очищаемого газа, при скорости фильтрации 1,4 м/мин5000 м3/час
Количество рукавов48 шт.
Концентрация пыли на выходе, не более,10мг/м3
Качество сжатого воздуха поГОСТ 17433-80 9 кл.
Разряжение на корпусе, в базовом исполнении6500Па
Масса фильтра рукавного (без опорной эстакады, лестницы и ограждения)1200 кг
В газе, идущем на очисткуне допускаются искры.


Общее описание (базовое исполнение)

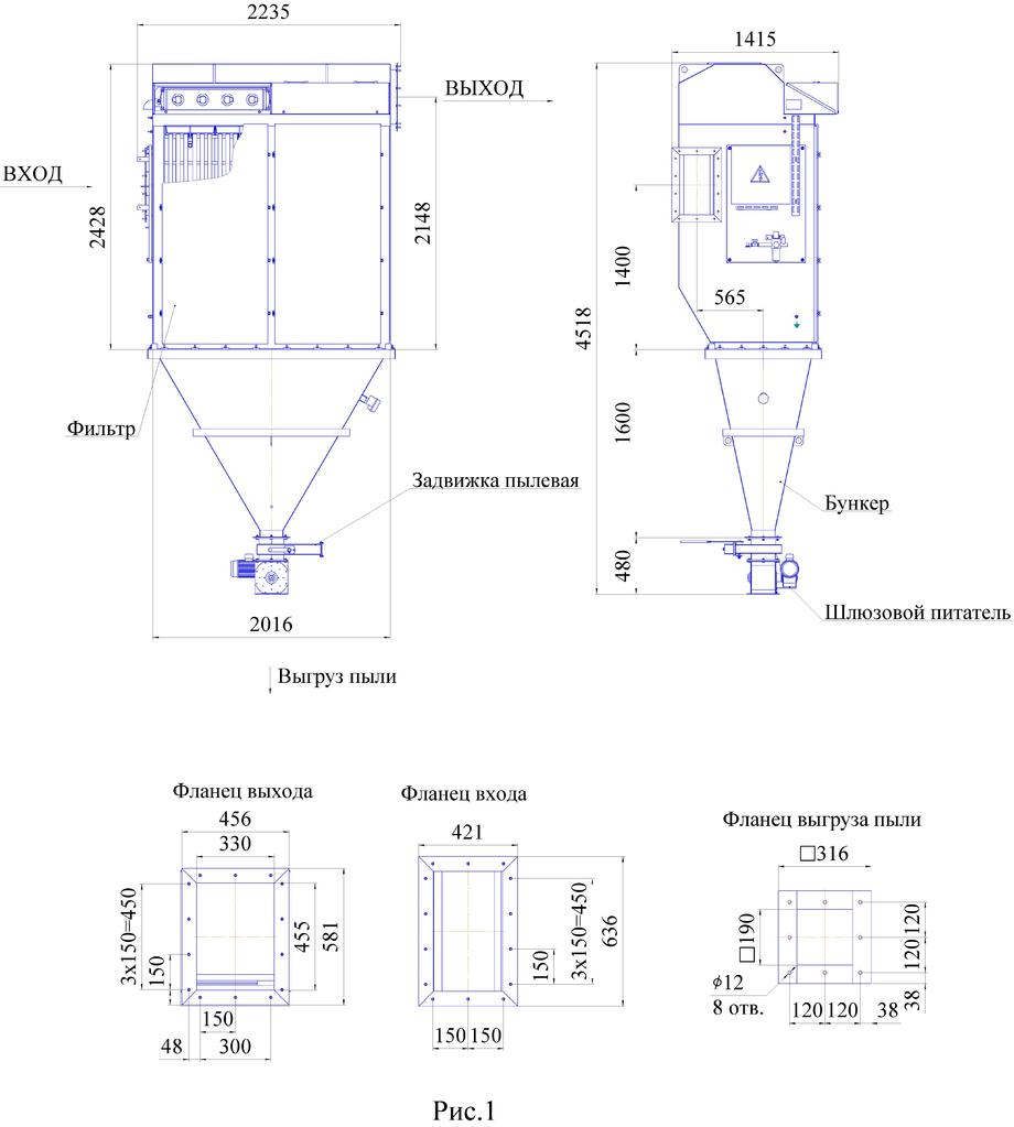
Корпус фильтра имеет вид шкафа с тремя боковыми дверьми для монтажа и демонтажа фильтроэлементов. Благодаря такой конструкции фильтр имеет компактные размеры и не требует дополнительного пространства для обслуживания над собой. Фильтроэлементы (всего их 48) установлены в вертикальном положении и собраны в кассеты по 6 штук в каждой.

На корпусе фильтра с левой стороны крепится шкаф управления, к которому подводится электропитание 220/380В.

Над дверью для удобства обслуживания установлен один блок с импульсными электромагнитными клапанами. Фланец входа расположен слева сбоку, фланец выхода расположен справа сверху.

Под корпусом фильтра смонтирован подрукавный пирамидальный бункер без шнека. К фланцу выгрузки из съемной шнековой части могут быть смонтированы дополнительные устройства пылевыгрузки.

Дополнительные опции

  • корпус под наполнением;
  • фильтрорукава из материалов с различными техническими характеристиками;
  • электрический подогрев системы регенерации;
  • взрывобезопасное исполнение;
  • встроенная система взрывоподавления;
  • встроенная система пожаротушения;
  • теплоизоляция корпуса сэндвич-панелями;
  • клапан подсоса перед фильтром;
  • виброустановка на подрукавном бункере;
  • датчики уровня пыли;
  • теплоизоляция бункера сэндвич-панелями;
  • дополнительный шнек связи;
  • устройства пылевыгрузки «мигалка» и «мигалка двойная»;
  • шлюзовый ротационный затвор с приводом без регулировки частоты вращения;
  • шлюзовый ротационный затвор с приводом с регулировкой частоты вращения;
  • устройство пылевыгрузки «задвижка ручная» или «задвижка с электроприводом»;
  • компрессорная установка (поршневая или винтовая) в комплекте;
  • осушитель сжатого воздуха (сорбционный) в комплекте с компрессорной установкой;
  • опорная эстакада;
  • ограждение;
  • лестница;
  • вытяжной вентилятор.

Габаритные чертежи





Назад в раздел

Заказ товара

Ваше имя*
Ваш E-mail
Телефон*
Сообщение
CAPTCHA

Чтобы сделать сайт еще удобнее, мы анализируем пользовательский опыт - собираем данные...
Подробнее
Чтобы сделать сайт еще удобнее, мы анализируем пользовательский опыт - собираем данные с помощью файлов cookie, журналов истории доступа и web-счетчиков. Согласно Федеральному закону «О персональных данных» мы обязаны сообщить вам об этом. Продолжая работу с ресурсом, вы выражаете согласие на обработку ваших данных. Более подробная информация размещена в разделе «Политика конфиденциальности»
VSRT3S1_VILKA