197229, г. Санкт-Петербург, 1-я Конная Лахта дом 9
Меню

Рукавный фильтр КФЕ384А

Заказать

Технические характеристики

Гидравлическое сопротивление фильтра2500Па
Площадь фильтрации, не менее480м2
Максимальный расход очищаемого газа, при скорости фильтрации 1,4 м/мин40 000 м3/час
Количество рукавов384 шт.
Концентрация пыли на выходе, не более,10мг/м3
Качество сжатого воздуха поГОСТ 17433-80 9 кл.
Разряжение на корпусе, в базовом исполнении6500Па
Масса фильтра рукавного (без опорной эстакады, лестницы и ограждения)6470 кг
В газе, идущем на очисткуне допускаются искры.


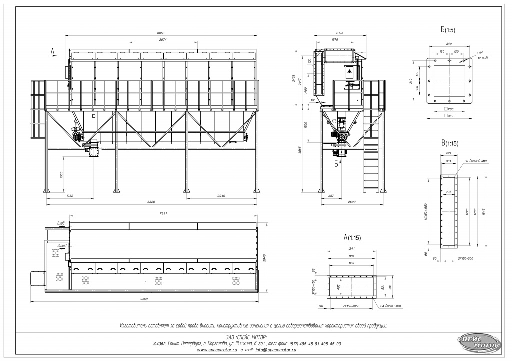
Общее описание (базовое исполнение)

Корпус фильтра имеет вид шкафа с восьмью боковыми дверями для монтажа и демонтажа фильтроэлементов. Благодаря такой конструкции, фильтр имеет компактные размеры и не требует дополнительного пространства для обслуживания над фильтром. Фильтроэлементы установлены в вертикальном положении. Фильтроэлементы собираются в кассеты по 6 штук в каждой кассете.

Всего в фильтре 384 штуки фильтроэлементов.

На корпусе фильтра с левой стороны, крепится шкаф управления фильтром, к которому подводится электропитание 220/380В.

Над дверью, для удобства обслуживания установлены блоки с импульсными электромагнитными клапанами. Фланец входа расположен слева сбоку, фланец выхода расположен справа сверху.

Под корпусом фильтра смонтирован подрукавный пирамидальный бункер со съемной шнековой частью, в которой расположен шнековый конвейер. К фланцу выгрузки из съемной шнековой части могут быть смонтированы дополнительные устройства пылевыгрузки.

Дополнительные опции

  • Исполнение корпуса под наполнением;
  • Комплектация фильтрорукавами из материала с различными техническими характеристиками;
  • Электрический подогрев системы регенерации;
  • Исполнение в взрывобезопасном исполнении;
  • Встроенная система взрывоподавления;
  • Встроенная система пожаротушения;
  • Теплоизоляция корпуса сэндвич-панелями;
  • Установка перед фильтром клапана подсоса;
  • Комплектация подрукавного бункера виброустановкой;
  • Комплектация датчиками уровня пыли;
  • Теплоизоляция бункера сэндвич-панелями;
  • Комплектация дополнительным шнеком связи;
  • Устройство пылевыгрузки «Мигалка» и «Мигалка двойная»;
  • Установка шлюзового ротационного затвора с приводом без регулировки частоты вращения;
  • Установка шлюзового ротационного затвора с приводом с регулировкой частоты вращения;
  • Устройство пылевыгрузки «Задвижка ручная» или «Задвижка с электроприводом»;
  • Поставка в комплекте с фильтром компрессорной установки (поршневой или винтовой);
  • Поставка в комплекте с компрессорной установкой осушителя сжатого воздуха (сорбционный);
  • Опорная эстакада;
  • Ограждение;
  • Лестница;
  • Вытяжной вентилятор

Габаритные чертежи


Фотографии

Рукавные фильтры типа КФЕ первого поколения производства АО «СПЕЙС-МОТОР» Рукавные фильтры типа КФЕ первого поколения производства АО «СПЕЙС-МОТОР»





Назад в раздел

Заказ товара

Ваше имя*
Ваш E-mail
Телефон*
Сообщение
CAPTCHA

Чтобы сделать сайт еще удобнее, мы анализируем пользовательский опыт - собираем данные...
Подробнее
Чтобы сделать сайт еще удобнее, мы анализируем пользовательский опыт - собираем данные с помощью файлов cookie, журналов истории доступа и web-счетчиков. Согласно Федеральному закону «О персональных данных» мы обязаны сообщить вам об этом. Продолжая работу с ресурсом, вы выражаете согласие на обработку ваших данных. Более подробная информация размещена в разделе «Политика конфиденциальности»
VSRT3S1_VILKA