197229, г. Санкт-Петербург, 1-я Конная Лахта дом 9
Меню

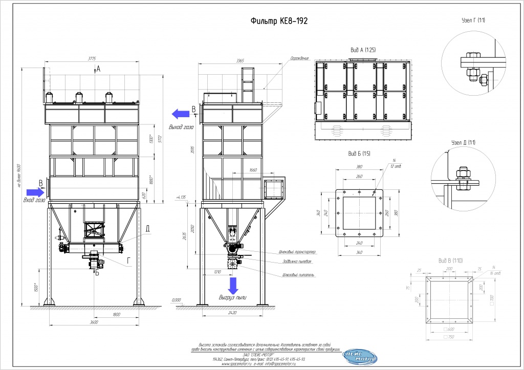
Рукавный фильтр КЕ-8-192

Заказать

Технические характеристики

Гидравлическое сопротивление фильтра2500Па
Площадь фильтрации, не менее576 м2
Максимальный расход очищаемого газа, при скорости фильтрации 1,5 м/мин50 000 м3/час
Количество рукавов192 шт.
Концентрация пыли на выходе, не более,10 мг/м3
Качество сжатого воздуха поГОСТ 17433-80 9 кл
Разряжение на корпусе, в базовом исполнении6500Па
Электропитание фильтра220/380 В, 50 Гц
Масса15 т.


Общее описание (базовое исполнение)

Фильтр состоит:

  • чистая камера с импульсными трубами;
  • ресиверы сжатого воздуха с электромагнитными клапанами;
  • каркасные сетки;
  • фильтрорукава;
  • щиты корпуса фильтра;
  • капилляры подвода газа;
  • коллектор;
  • подрукавный бункер;
  • шнековый транспортёр
  • устройства пылевыгрузки

Дополнительные опции:

  • Исполнение корпуса под наполнением;
  • Комплектация системой регенерации с обратной продувкой без использования сжатого воздуха;
  • Комплектация фильтрорукавами из материала с различными свойствами;
  • Электрический подогрев системы регенерации;
  • Исполнение в взрывобезопасном исполнении;
  • Встроенная система взрывоподавления;
  • Встроенная система пожаротушения;
  • Теплоизоляция корпуса сэндвич-панелями;
  • Установка перед фильтром клапана подсоса;
  • Установка перед фильтром смесительной камеры
  • Установка на входе в фильтр форсунок для подачи воды;
  • Комплектация подрукавного бункера виброустановкой;
  • Комплектация датчиками уровня пыли;
  • Теплоизоляция бункера сэндвич-панелями;
  • Комплектация дополнительным шнеком связи;
  • Устройство пылевыгрузки «Мигалка» и «Мигалка двойная»;
  • Установка шлюзового ротационного затвора с приводом без регулировки частоты вращения;
  • Установка шлюзового ротационного затвора с приводом с регулировкой частоты вращения;
  • Устройство пылевыгрузки «Задвижка ручная» или «Задвижка с электроприводом»;
  • Теплоизоляция подбункерного помещения сэндвич панелями;
  • Поставка в комплекте с фильтром компрессорной установки (поршневой или винтовой);
  • Поставка в комплекте с компрессорной установкой осушителя сжатого воздуха (сорбционный);
  • Утепление подбункерного помещения сэндвич-панелями;
  • Установка сервисного помещения;
  • Опорная эстакада;
  • Ограждение;
  • Лестница;
  • Вытяжной вентилятор

Габаритные чертежи

Фотографии





Назад в раздел

Заказ товара

Ваше имя*
Ваш E-mail
Телефон*
Сообщение
CAPTCHA

Чтобы сделать сайт еще удобнее, мы анализируем пользовательский опыт - собираем данные...
Подробнее
Чтобы сделать сайт еще удобнее, мы анализируем пользовательский опыт - собираем данные с помощью файлов cookie, журналов истории доступа и web-счетчиков. Согласно Федеральному закону «О персональных данных» мы обязаны сообщить вам об этом. Продолжая работу с ресурсом, вы выражаете согласие на обработку ваших данных. Более подробная информация размещена в разделе «Политика конфиденциальности»
VSRT3S1_VILKA