197229, г. Санкт-Петербург, 1-я Конная Лахта дом 9
Меню

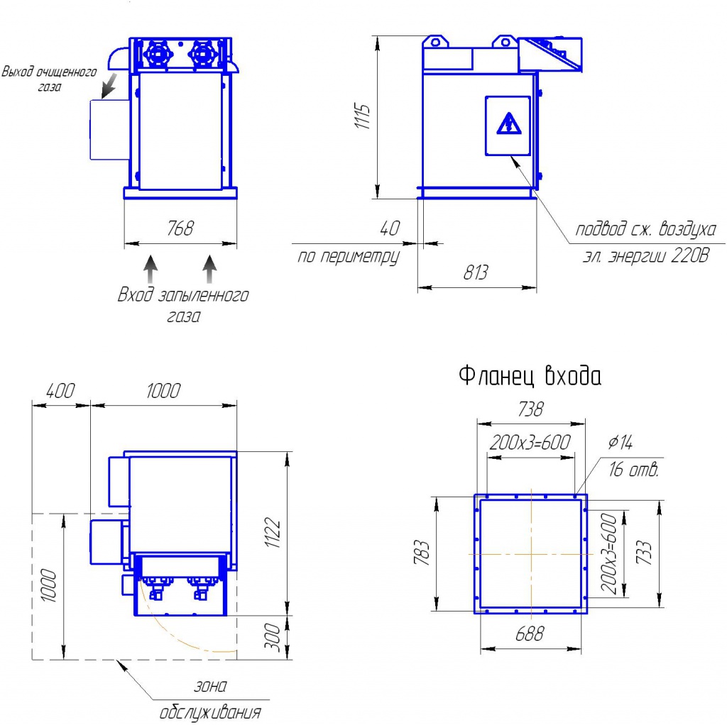
КФЕ10ТС

Заказать

Технические характеристики

Гидравлическое сопротивление фильтра2500Па
Площадь фильтрации, не менее10 м2
Максимальный расход очищаемого газа, при скорости фильтрации 1,4 м/мин400 м3/час
Количество рукавов32 шт.
Концентрация пыли на выходе, не более,10 мг/м3
Расход сжатого воздуха, л/мин70
Качество сжатого воздуха поГОСТ 17433-80 9 кл.
Разряжение на корпусе, в базовом исполнении6500Па
Установленная потребляемая мощность0,5 кВт
Электропитание фильтра220/380 В, 50 Гц
Масса фильтра рукавного400 кг
В газе, идущем на очисткуне допускаются искры.


Габаритные чертежи


Фото




Назад в раздел

Заказ товара

Ваше имя*
Ваш E-mail
Телефон*
Сообщение
CAPTCHA

VSRT3S1_VILKA